Mustafa Yurdugür

MUSTAFA YURDUGÜR

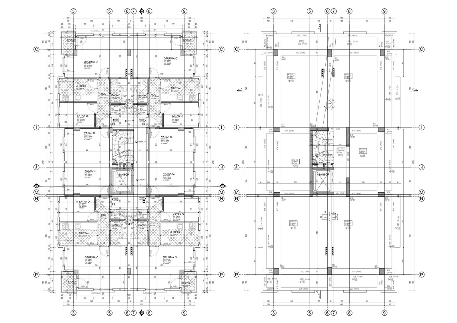
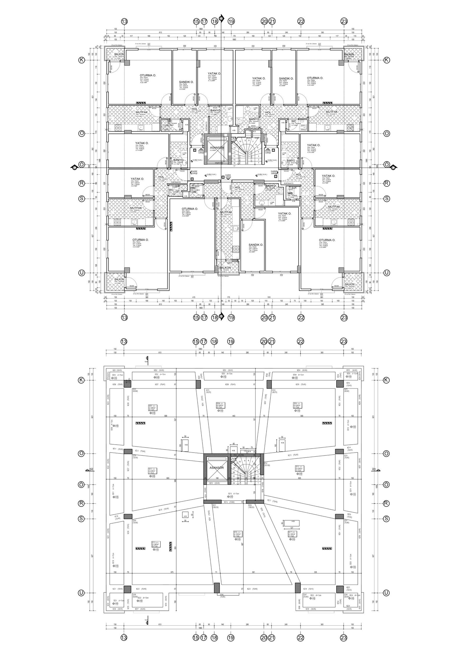
Projemiz 15 cm plak döşeme olarak çözümlenmiştir. Tasarımlar sonucunda AutoCAD programında çizimler hazırlanmıştır.

Plak döşeme: En az bir kenarı kirişe oturan plaklardır. Kirişli döşeme (plak döşeme), yükleri ve kenarları çok büyük olmayan hacimlerde genellikle tercih edilirler. Konut tipi yapılarda sıklıkla kullanılan döşeme tiplerindendir.

Mustafa Yurdugür 4
Mustafa Yurdugür 5
Mustafa Yurdugür 6